Gazebos en métal fiables et élégants: types et construction par vous-même
Contenu
Formes et variétés
Il y a plusieurs bonnes raisons de choisir un métal lors de la construction d'un gazebo :
- Le sol de la zone sélectionnée est meuble et en équilibre instable.
- De temps en temps, le gazebo devra être déplacé vers un autre endroit.
- En raison du climat particulièrement défavorable, la structure nécessite une fiabilité accrue.
- Le désir de construire une structure créative qui a besoin d'une force particulière.
Les concepteurs aiment le métal pour une raison - avec son aide, lors de la création d'objets, ils parviennent à réaliser les fantasmes les plus audacieux. Le type et la forme d'un kiosque en métal dans le secteur privé ne dépendent que des préférences de ses propriétaires. Il existe des carrés et des ronds, des hexagones et des rectangulaires, des forgés, avec un toit en arc, etc.
Différents projets diffèrent également par la méthode d'assemblage :
- structures soudées, tous les travaux sont effectués rapidement et de manière fiable;
- préfabriqués, où les boulons sont utilisés comme pièces de fixation.
En combinant les deux méthodes, il est possible d'organiser un gazebo de plusieurs modules dans la cour de la maison, ce qui permettra par la suite de le démonter facilement et de le transférer dans un autre endroit ou pour le ranger. Comme les structures en bois, les gazebos en métal sont ouverts ou recouverts de structures murales qui protègent du vent ou de la neige. Les ouvertures vides pour l'hiver peuvent également être recouvertes de feuilles de polycarbonate ou de rideaux en PVC.
Vidéo "Bricolage gazebo en métal"
À partir de cette vidéo, vous apprendrez à réaliser un projet de gazebo en métal à faire soi-même.
Quel métal convient
Pour la construction de structures légères de vos propres mains, des tubes profilés de section rectangulaire ou circulaire conviennent. Une épaisseur de paroi de 2-3 mm suffit pour un gazebo. Lors du choix d'un matériau, vous devez être guidé par l'aspect pratique. Par exemple, les tuyaux ronds sont moins chers, mais souder avec eux nécessite des compétences particulières, il sera difficile pour un débutant de faire une couture solide et belle.
Une autre question est de savoir s'il faut préférer l'acier ou s'en tenir à l'aluminium. Tout dépend des circonstances:
- l'acier est moins cher et plus solide;
- l'aluminium est plus cher, mais plus léger, plus pratique à travailler, donne à la structure de la rue un aspect plus coloré.
Il est permis de construire en métal galvanisé ou peint. Enfin, s'il y a suffisamment de fonds, cela vaut la peine de construire un gazebo en fer forgé, lui donnant un look à couper le souffle.
Comment construire
Pour une zone de loisirs, les experts recommandent de choisir des endroits calmes et isolés avec de belles vues sur la nature environnante. Mais lorsqu'il s'agit de constructions métalliques, des exigences techniques s'ajoutent également à la liste :
- Si la structure n'est pas fixée de manière rigide au sol, elle peut être déplacée voire renversée par des rafales de vent fort. Assurez-vous de considérer la rose des vents et sa force sur le site.
- Le niveau du sol doit être élevé afin que le sol du belvédère ne soit pas inondé les jours de pluie.
La zone choisie doit être nettoyée en vue de la construction. Débarrassez-vous des débris, déterrez les racines et les arbustes.Il est également conseillé d'enlever la couche supérieure du sol, en approfondissant 20 cm de profondeur, ce qui vous permettra de vous débarrasser des mauvaises herbes à l'avenir.
La zone excavée est recouverte d'un coussin de sable, qui est tassé avec de l'eau. Sur le dessus, vous pouvez poser un film plastique ou un géotextile.
Les autres actions dépendent de si vous avez besoin d'un grand gazebo fixe ou d'un petit portable. Les experts recommandent de travailler avec du métal non peint afin de ne pas inhaler de fumées nocives lors du chauffage. Le matériau doit être peint ou verni à la toute fin.
Avec fondation
Les bâtiments fixes nécessitent une fondation solide. Nous devrons construire une fondation en colonnes, creuser des trous, y construire un coussin de sable et couler du béton dans les poteaux de support insérés.
Une autre option consiste à bétonner le site. Sur le site préparé :
- le coffrage est en construction;
- une armature en treillis métallique est posée, pour laquelle la corrosion n'est pas terrible;
- la fosse est coulée avec du béton, le long du chemin nivelant la surface.
À l'avenir, la surface en béton sera recouverte d'une sorte de revêtement de sol. Des dalles de pavage, de la pierre naturelle ou artificielle, des planches de bois, etc. feront l'affaire.
Pour augmenter la fiabilité, les deux méthodes, bétonnage et fondations en colonnes, peuvent être combinées. Pour les piliers de support, des tuyaux profilés sont également utilisés.
Sans fondation
Pour les gazebos portables, la fondation est facultative. Le cadre inférieur est créé à l'avance avec des supports spéciaux orientés verticalement. Avec leur aide, le belvédère est amené et fixé dans une zone préparée, recouverte de dalles de pavage ou de pierre naturelle. Certes, pour la mobilité, les dimensions d'une telle structure doivent être petites.
Matériaux de mur
La charpente du bâtiment est réalisée par soudage ou boulonnage des pièces selon le plan choisi. Voici une instruction étape par étape :
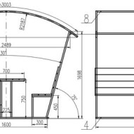
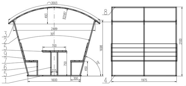
- Tout d'abord, les poteaux de support sont échaudés avec des rangées de veines (une ceinture de tuyaux profilés), situées à des hauteurs différentes les unes des autres. La première rangée de sauteurs inférieurs est fixée à une hauteur de 80 cm du sol, la rangée suivante est plus haute de 20 cm.
- Le cadre du cadre est soudé. Des cavaliers sont fixés aux extrémités des poteaux de support selon le dessin. La hauteur de tous les éléments doit être la même.
- Le harnais supérieur est monté - des tuyaux de 40x25 mm sont placés sur les supports et soudés.
- Le cadre fini est apprêté, l'apprêt est laissé à sécher, puis peint.
Il est recommandé d'effectuer des travaux de soudage ensemble: un maître cuisinera, l'autre vérifiera la régularité de l'ensemble de la structure.
Lors de la construction d'un belvédère fermé, le côté du cadre est également couvert. À cette fin, le même polycarbonate convient, bien que vous puissiez simplement décorer les "murs" avec des barres métalliques ou des structures ajourées faites maison spécialement soudées.
Toit
La façon la plus simple de faire un toit à pignon est la suivante.
Le cadre est d'abord soudé au sol, puis levé et fixé sur le harnais supérieur. A la fin, la charpente est recouverte de matériau de couverture : polycarbonate, tôle profilée de couverture, tuiles métalliques. Le plus souvent, des feuilles de polycarbonate sont utilisées, elles peuvent avoir une forme incurvée, obtenant des structures arquées pittoresques avec des tuyaux profilés incurvés.
Il est préférable de fixer ce matériau avec des rondelles thermiques. Pour ça:
- Une feuille de matériau est posée, nivelée.
- Avec une perceuse pour métal au point de l'attache, un trou traversant est fait à travers le matériau et le métal.
- La feuille est fixée avec des rondelles thermiques.
- Les extrémités du polycarbonate alvéolaire sont isolées avec des rubans de protection spéciaux.
Le sol d'un gazebo fixe est fait en dernier :
- Des rondins transversaux sont attachés à la jonction inférieure avec un pas de 50 cm.
- Des trous sont percés dans les bûches avec un pas de 30 cm.
- À l'aide de vis autotaraudeuses, les planches sont montées comme revêtement de sol.
Il est recommandé que les planches préparées soient d'abord soumises à un traitement spécial. Pour ce faire, le bois est imprégné de teinture à bois, poncé.Il est nécessaire de peindre et de vernir les planches uniquement à la fin de tous les travaux.
Décor
Bien que le cadre de la structure soit en métal, les planches de bois conviennent tout à fait à la décoration. Pour leur installation, des barres en bois avec des trous préfabriqués sont fixées aux tuyaux horizontaux du cadre et des bandes sont fixées sur le dessus des barres.
Vous pouvez décorer l'intérieur de différentes manières. Les fleurs sont la première chose qui vient à l'esprit lors de la décoration d'un kiosque de jardin. Les plantes grimpantes, comme la vigne, conviennent à l'ensemble du bâtiment. Les fleurs fraîches dans des pots lumineux, accrochées aux murs, sont également magnifiques.
Il y a aussi d'autres possibilités. Les bijoux forgés ont l'air bien. Les textiles sont une option de décoration belle et pratique. Les rideaux lumineux décoreront non seulement les murs, mais créeront également une bonne protection contre le vent.
Étant donné que le métal n'a pas peur du feu, vous pouvez installer un gril portable dans le belvédère intégré ou même construire un four à barbecue à part entière en briques, transformant le belvédère en cuisine d'été.
Après avoir fait un choix en faveur du métal comme matériau de construction, vous ne vous tromperez pas. Les gazebos avec une structure en métal sont fiables, servent longtemps, ravissant leurs propriétaires avec un bel aspect ajouré.



