Comment faire d'un belvédère avec barbecue le point culminant d'un terrain personnel
Contenu
Activités préliminaires
Avant de construire un belvédère, vous devez comprendre la variété de leurs formes et de leurs objectifs. Par conception, les options suivantes sont distinguées:
- ouvert;
- fermé;
- à moitié ouvert.
Par type de matériau, ces structures légères sont divisées en:
- brique;
- en bois;
- métal;
- d'autres types de matériaux non standard.
Vous devez maintenant choisir l'option de conception souhaitée, décider de l'emplacement et de la taille de la future structure. Lors du choix d'un emplacement, un facteur très important sera la capacité de combiner le futur bâtiment avec le paysage existant. Habituellement, le bâtiment est semi-ouvert. Lorsqu'ils sont utilisés en hiver, ils prévoient de construire un type fermé.
Les dimensions de la zone du gazebo doivent correspondre aux souhaits de choix de la taille du futur lieu de repos. Il est important de considérer le nombre de personnes qui devront se sentir à l'aise à l'intérieur. L'option idéale serait une zone plate entourée d'espaces verts bas, loin d'un immeuble résidentiel.
Pour qu'il n'y ait pas d'inconfort lors de l'utilisation du barbecue, vous devez immédiatement déterminer sa place dans le belvédère. Réfléchissez au dispositif de la cheminée de manière à ce que les arbres voisins ne gênent pas le tirage du futur poêle. La taille de la future structure est légèrement inférieure à celle du site afin que les plantations environnantes puissent continuer à croître, ainsi que pour la possibilité d'approcher et d'aménager le toit.
Après avoir choisi l'emplacement et les dimensions, il est nécessaire de faire un projet qui contiendra des croquis ou des dessins indiquant les matériaux, les exigences techniques pour la construction. Le plan de construction doit inclure le design extérieur du gazebo.
Vidéo "Gazebo avec barbecue de vos propres mains"
À partir de cette vidéo, vous apprendrez à construire un belvédère avec un barbecue de vos propres mains.
Création DIY
Chaque résident d'été peut construire lui-même un gazebo. Il est nécessaire d'avoir de petites compétences pour travailler avec du mortier, de la brique, de la pelle. Afin de faire un bâtiment avec un barbecue en brique, nous aurons besoin de l'outil suivant:
- instruments de mesure;
- corde avec piquets;
- pelle, marteau;
- Maître OK ;
- outil de menuisier.
Fondation
La construction de toute structure, même petite, commence par un squelette. Il reste à commencer à effectuer le travail:
- Nous allons baliser la fondation à l'emplacement proposé de la future structure. Pour un gazebo en brique avec barbecue, on choisit une fondation monolithique.
- Nous allons creuser une fosse de fondation de 40 à 50 cm de profondeur.Couvrir la zone de la fosse avec du gravier, puis poncer et niveler. En utilisant des profilés métalliques inutiles, nous réaliserons le renforcement de la cavité interne de la future fondation.
- Nous installons le coffrage de manière à ce que le plan supérieur de la fondation soit 10 à 15 cm plus haut que le niveau du sol.
- Remplissez la cavité intérieure de la fosse. Maintenant, la fondation doit sécher.
Le séchage complet de la fondation monolithique se produira dans 2-3 semaines, en fonction des conditions météorologiques. Il est souhaitable de le recouvrir d'un film afin qu'aucune fissure n'apparaisse à la surface du squelette.
Disposition au sol
Une fois la fondation complètement sèche, passez au sol :
- À l'aide d'un niveau horizontal, nous vérifions la planéité et l'horizontalité de la surface du squelette.
- Si des irrégularités sont détectées, nous les éliminons avec une solution ou en utilisant des mélanges de construction spéciaux pour niveler les sols.
- Nous marquons une place pour un complexe de barbecue et pour la pose de murs.
- Nous effectuons la finition en utilisant des carreaux ou tout autre matériau de finition souhaité pour le revêtement de sol.
La finition finale du sol peut être effectuée après la construction des murs et l'aménagement de l'espace barbecue. Cela est dû à la précision du travail.
Murs et toit
Pour la construction des murs du gazebo, il est préférable d'utiliser une brique de silicate blanc et demi. C'est un matériau simple et fiable qui durera des décennies :
- Marquons les lignes extérieures des murs. Pour ce faire, nous nous retirerons du bord de la fondation de 5 à 10 cm et étirons les cordes. Ce sera le contour extérieur des murs.
- Conformément au projet, nous poserons les murs en demi-brique. Lors de la pose de briques, il est important de savoir que chaque rangée suivante se déplace en damier de la moitié de la brique.
- Une attention particulière doit être accordée aux parties ouvertes du gazebo, qui peuvent ensuite être utilisées pour le vitrage. Les poteaux entre les ouvertures creuses doivent avoir une épaisseur de brique. Cela supportera la charge sur les poutres et les chevrons du système de toiture.
- Nous préparerons une barre pour le cadre et le cerclage du toit. Découpez les poutres du cadre (Mauerlat) de la taille requise et connectez-les. Si le gazebo est petit (3 × 3 m), l'installation de systèmes de cadre et de chevrons peut être effectuée au sol.
- Nous allons maintenant découper les éléments les plus longs du système de chevrons - les patins.
- Nous réaliserons des chevrons courts et longs, sans oublier la découpe pour le Mauerlat. Avec une grande pente de toit, découpez des crémaillères pour soutenir les chevrons - faîte. Ils aideront à éviter la déviation du système de chevrons.
- Nous assemblerons la structure du système de fermes localement ou au sol (selon sa taille).
- Nous couvrirons la structure avec un matériau de toiture présélectionné.
Maintenant, notre gazebo est protégé de la pluie et de la neige.
Construction d'une contrepartie en bois
Les résidents d'été construisent souvent des kiosques d'été en bois, ce qui est moins coûteux et facile à installer. Dans ce cas, du bois profilé, collé ou arrondi est utilisé.
Les habitants des fermes maraîchères accordent plus d'attention au respect de l'environnement et à l'esthétique de leur structure. La structure en bois du gazebo vous permet d'incarner tous les souhaits pour la conception et la décoration de votre idée.
Commençons à construire :
- Marquons la place de la fondation. Pour une structure en bois, elle peut être en latte, colonnaire ou monolithique.
- Pour le ruban, nous creuserons une tranchée de 25-30 cm de large et 30-40 cm de profondeur.
- Nous réaliserons le coffrage en tenant compte du fait que la surface de la fondation sera 10 à 15 cm plus haute que le niveau du sol.
- Nous renforçons la cavité intérieure de la tranchée avec des déchets métalliques, la remplissons d'une solution et la laissons sécher.
- Placez les poutres du cadre inférieur sur la fondation et connectez-les au cadre.
- Assemblons le cadre inférieur avec les montants et les poutres intermédiaires au niveau des ouvertures des fenêtres. Les supports verticaux doivent être fixés au cadre inférieur avec des coins métalliques avec des vis.
- Nous allons fabriquer et installer le toit de la même manière que pour une tonnelle en brique.
- Nous allons coudre le sol avec une planche spécialement conçue pour cela.
- Nous arrondirons le cadre avec une barre, ce qui est prévu par le projet. Nous décorerons les ouvertures des fenêtres du bâtiment d'été semi-ouvert avec des treillis décorés.
Le bâtiment est prêt. Pour préserver toutes les propriétés et embellir la structure, les bâtiments en bois sont vernis. Dans ce cas, une teinture est utilisée, ce qui donne au gazebo la teinte souhaitée.
Zone de Manga
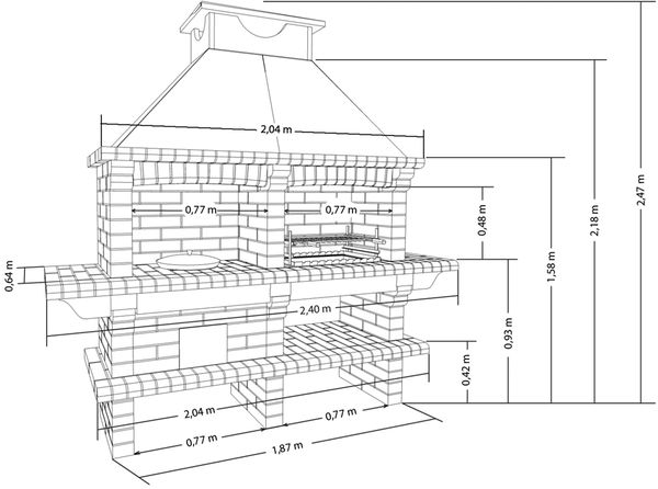
Un excellent ajout, et souvent l'élément principal du belvédère, est une cuisinière ou un barbecue. Vous pouvez construire vous-même un tel ajout à la structure ou acheter un brasier prêt à l'emploi et le placer à l'intérieur.
Choisir une installation prête à l'emploi
Lorsque vous utilisez un barbecue prêt à l'emploi, vous devez penser à l'avance à l'endroit où il sera installé. Le sol doit être ignifuge à l'endroit où il est prévu d'installer le barbecue. Lors du choix de l'équipement fini, tenez compte des éléments suivants :
- respect des exigences de préparation des aliments : barbecue, fumoir, etc. ;
- la possibilité d'insérer un nouvel élément à l'intérieur du belvédère ;
- disponibilité des capacités techniques pour installer le barbecue.
L'utilisation d'un barbecue prêt à l'emploi peut ne pas être très confortable si vous ne pensez pas à la possibilité d'éliminer la fumée. Supposons que l'unité finie n'ait pas de cheminée et que le gazebo soit vitré, alors toute la fumée remplira l'intérieur du bâtiment.
Pour éviter un tel inconfort, un petit trou rond pour le tuyau doit être fait dans le mur ou doit être fait à l'avance. C'est dans le mur quand il s'agit d'un barbecue autoportant. Directement à travers le toit, une cheminée est faite pour les poêles ou les barbecues installés en permanence. Le gril prêt à l'emploi acheté doit avoir une cheminée.
Auto-érection
Lors de la construction d'une fondation, il est important de considérer la possibilité d'installer un barbecue intégré à l'intérieur du gazebo. L'installation de tout équipement de four nécessite la disposition d'un squelette fiable. La construction du barbecue est réalisée avant la pose des murs ou le cerclage est réalisé avec une ossature bois :
- S'il y a une fondation en bande pour une structure en bois, il est nécessaire de creuser une fosse à l'endroit où le barbecue doit être installé. La fosse doit avoir une surface légèrement plus grande que la future surface de la maçonnerie du barbecue, ainsi que toutes les zones de cuisson supplémentaires, un emplacement pour un chaudron, un évier, etc. Si la fondation du belvédère est monolithique, cela suffira pour installer des équipements de four.
- Nous réaliserons le coffrage, renforcerons et remplirons de béton les fondations au ras des fondations du futur bâtiment.
- Une fois le cadre séché, nous poserons la première rangée solide, en d'autres termes, dans une brique. Un jour avant le début des travaux, la brique est humidifiée avec de l'eau.
- Aménagez le sous-sol de l'équipement de la fournaise à l'aide de la commande. Nous posons le barbecue des coins au milieu. S'il n'y a pas d'expérience d'un tel travail, il est nécessaire de faire des croquis pour chaque rangée.
- Dans la partie inférieure du barbecue, nous installerons des grilles en fonte. Pour la pose de la partie principale, de la chaux est ajoutée à la solution en une quantité ne dépassant pas la teneur en ciment. Cette solution doit avoir la consistance d'une crème sure épaisse.
- Après avoir posé la partie du sous-sol et installé la grille, nous procédons à la construction du foyer. Nous remplaçons le mortier par un mélange argile-sable, que nous préparons quelques semaines avant les travaux de construction. Pour que le mélange soit de haute qualité, il est nécessaire de faire tremper l'argile dans un grand récipient et d'ajouter périodiquement de l'eau. Ensuite, du sable est ajouté à ce mélange et utilisé pour la maçonnerie. Seules des briques en argile réfractaire sont utilisées pour la chambre de combustion. Il a des propriétés plus stables lorsque la température augmente considérablement jusqu'à 1700 ° C.
- Recouvrez le foyer d'une feuille de métal et posez-le avec des briques réfractaires. Dans la partie latérale ou supérieure, nous fournirons un trou pour la cheminée.
- Une fois le foyer terminé, il doit être recouvert de brique rouge avec un écart de 5 à 10 mm. Avant d'ériger le foyer, cet espace doit être pris en compte afin que les parois extérieures du barbecue aient des surfaces verticales planes.
- La cloison avant du barbecue est généralement réalisée sous la forme d'un demi-cercle. Pour obtenir une si belle forme, vous devez créer un modèle.
- En utilisant de la brique rouge et un mélange d'argile et de sable, nous allons amener la maçonnerie extérieure du gril avec une chambre de combustion dans un périmètre, en le réduisant progressivement.
- Nous apporterons la réduction du périmètre à la section désirée de la cheminée.Disposons la cheminée avec des briques à la hauteur de conception.
- Nous terminerons l'installation de la cheminée avec le tuyau existant en métal ou en amiante.
Pour augmenter les possibilités culinaires, la grille du barbecue peut être complétée par des amortisseurs de traction et la façade du poêle. Ces amortisseurs sont en métal, jusqu'à 1 mm d'épaisseur, et peints en noir avec des peintures réfractaires spéciales. Maintenant, après la construction du barbecue, vous pouvez effectuer le reste du travail.
À la fin de la construction de l'ensemble du gazebo, nous recevrons un grand bâtiment chaleureux, qui deviendra partie intégrante d'une maison de campagne. Lors du vitrage de l'espace libre, le gazebo peut fonctionner comme une cuisine d'été.
Soins et aménagement ultérieur
Le bâtiment en brique ne nécessite aucun entretien. Et si le belvédère est en bois, vous devez périodiquement inspecter les surfaces, en particulier les murs extérieurs. Si des défauts sont constatés sur le revêtement vernis du bois, ils doivent être éliminés. Pour cela, les zones abîmées sont partiellement ou totalement vernies. Avant de vernir, ces surfaces doivent être dégraissées.
Après l'achèvement de tous les travaux de construction d'un barbecue et d'un belvédère, vous pouvez commencer à décorer votre idée. Pour cela, toutes sortes de solutions modernes sont utilisées. Grâce à eux, ils intègrent au maximum la structure dans l'image paysagère d'une zone suburbaine et la combinent avec l'intérieur, dans lequel s'intègre le barbecue. Le choix du style et les finitions dans la conception du bâtiment sont à la charge du propriétaire. Une décoration compétente et la sélection correcte de l'orientation stylistique pourront faire d'un belvédère avec un barbecue un point culminant non seulement du chalet d'été, mais de tout le village.
En plus des kiosques de barbecue en brique et en bois, les kiosques en métal sont devenus très populaires. Des tiges forgées en forme d'objets et d'images diverses confèrent à de telles structures un certain exotisme. Ces dernières années, les tuyaux en PVC ont été utilisés dans la construction. À partir d'eux, vous pouvez construire un belvédère d'été léger.





